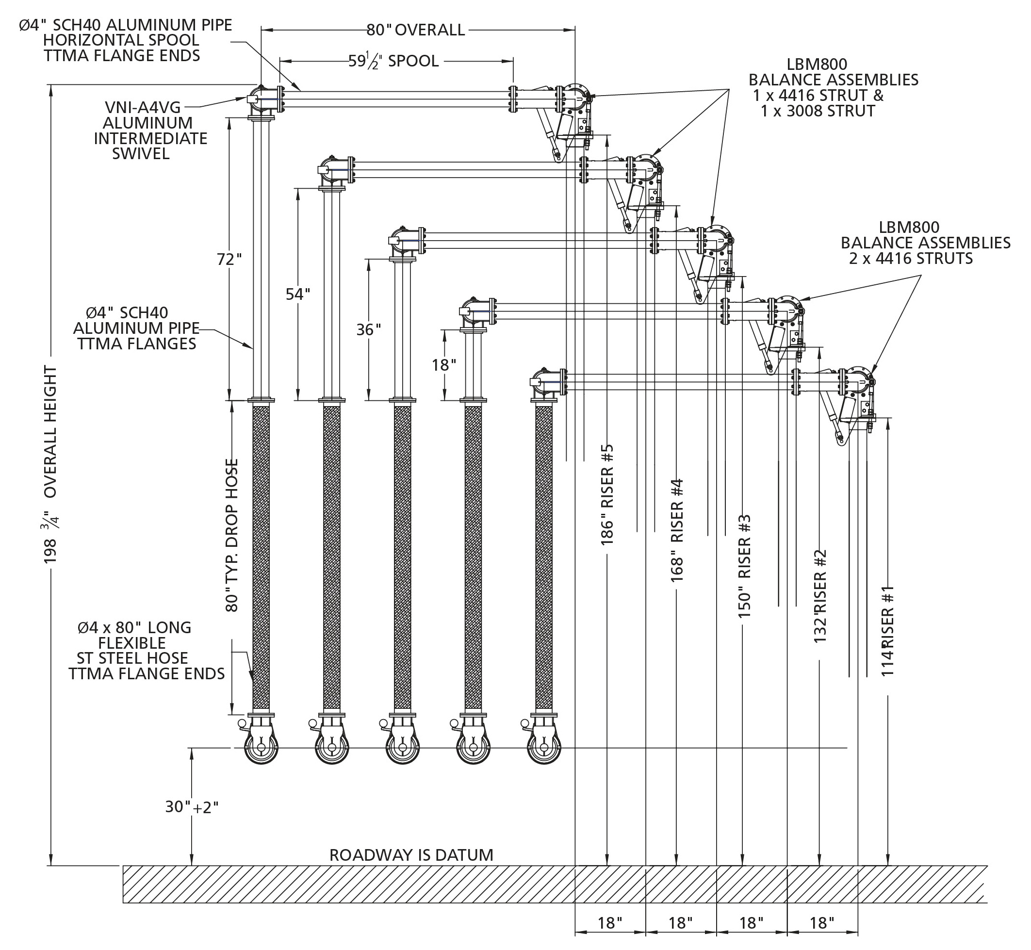
Gas Strut Hose (GSH) Bottom Loading Arm
        The GSH provides effortless bottom loading in petroleum-distribution terminals through the use of a unique operational capability known as the Velvet Touch.
The ability of 360-degree rotation in the horizontal plane allows the GSH to easily move from a parked to a loading position, and to service vehicles on either side of the loading bay. Additionally, the vertical-plane swivel allows users to position the coupler at different heights within the API envelope.
The New StandardLine
StandardLine Loading Arms by OPW Engineered Systems raise the bar in quality and performance for the industry. Get OPW's best-in-class loading systems in pre-engineered sizes, materials and feed orientations with delivery in 20 days or less. All StandardLine Loading Arms feature:
    - 
    Fast Delivery!
    
- 
    Menu of Options to Customize Your Arm
    
- 
    Included Freight in the Continental US and Canada
    
- 
    Exclusive 3-Year Warranty